🏡 Maison neuve à Jouars-Pontchartrain (78760) – 122 m² habitables sur terrain de 700 m² exposé Sud-Ouest
Un bien d’exception disponible en exclusivité dans les Yvelines
Concept R Home vous propose cette superbe maison familiale de 122 m² habitables, à bâtir sur un terrain de 700 m², idéalement situé à Jouars-Pontchartrain (78760).
Partiellement clos et en lot avant, ce terrain bénéficie d’une exposition Sud-Ouest offrant un ensoleillement optimal sur le jardin.






🌟 Une maison pensée pour votre confort et votre bien-être
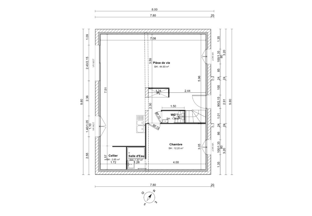
Cette maison à étage séduit par ses volumes lumineux, ses prestations de qualité et son aménagement fonctionnel.
Au rez-de-chaussée :
- Entrée avec placard intégré, pratique et élégante
- Spacieuse pièce de vie de 45 m² avec cuisine ouverte sur salon/séjour
- Chambre de plus de 12 m² avec salle d’eau attenante, idéale pour une suite parentale ou une chambre d’amis
À l’étage :
- 4 chambres confortables, parfaites pour accueillir toute la famille
- Salle de bains familiale et WC
🧱 Des prestations de qualitées signées Concept R Home
- Construction en briques sur vide sanitaire
- Volets roulants motorisés et connectés via une box domotique
- Grandes ouvertures pour une luminosité naturelle maximale
- Tuiles plates terre cuite, gouttières et descentes en aluminium
- Enduit gratté pour une finition élégante et durable
- Carrelage sur les pièces de jours et pèces d’eau
- Conforme à la norme RE2020 pour un confort thermique et acoustique optimal
🌿 Un cadre de vie privilégié
Située à Jouars-Pontchartrain, dans un environnement calme et résidentiel, cette maison allie proximité des commodités et qualité de vie :
écoles, commerces, transports et accès rapide à la N12 pour rejoindre Versailles ou Paris.
Un emplacement idéal pour une famille en quête d’espace, de nature et de modernité.
✅ En résumé :
- Maison neuve 5 chambres – 122 m² habitables
- Terrain de 700 m² exposé Sud-Ouest
- Suite parentale au rez-de-chaussée
- Prestations prestations de qualitées et domotique intégrée
- Environnement calme et recherché
- Prix : 457 679 € TTC*
📍 Localisation : Jouars-Pontchartrain (78760)
🏠 Type : Maison neuve individuelle
📐 Surface habitable : 122 m²
🌳 Terrain : 700 m²
🛏️ Chambres : 5
🚿 Salles d’eau : 2
🚗 Accès rapide : N12 – Versailles / Plaisir / Paris
* Prix indicatif : 457 679 € TTC
*Ce prix comprend le terrain et la maison prête à décorer, selon les plans et prestations décrits ci-dessus.
Sous réserve de disponibilité du terrain au moment de la réservation.
Hors frais de notaire, frais d’adaptation au sol, raccordements et aménagements extérieurs.
Visuels, plans et textes non contractuels.
Concept R Home se réserve le droit d’apporter toutes modifications techniques ou esthétiques nécessaires dans le respect de la réglementation en vigueur.
maisonneuve #JouarsPontchartrain #constructionmaison78 #maisonfamiliale #terrain700m2 #maisonRE2020 #constructeurYvelines #immobilierneuf #maison5chambres #expositionsudouest #maisonavecjardin #domotique
💬 Intéressé par ce projet ?
Contactez Concept R Home pour étudier ensemble votre projet de construction à Jouars-Pontchartrain et personnaliser cette maison selon vos envies.